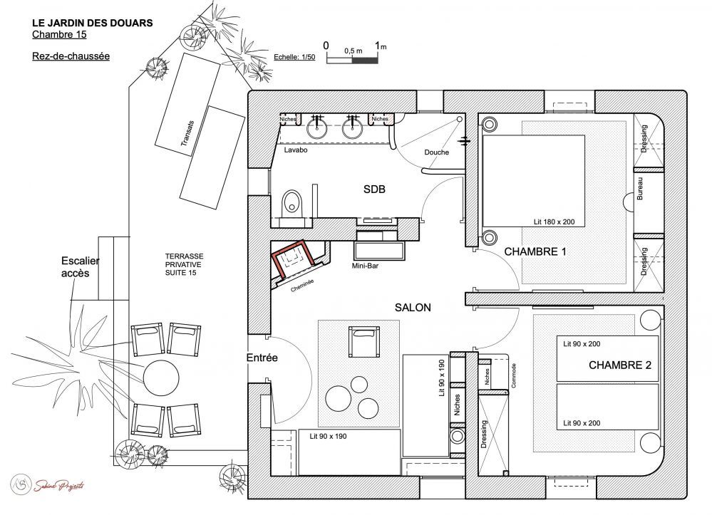
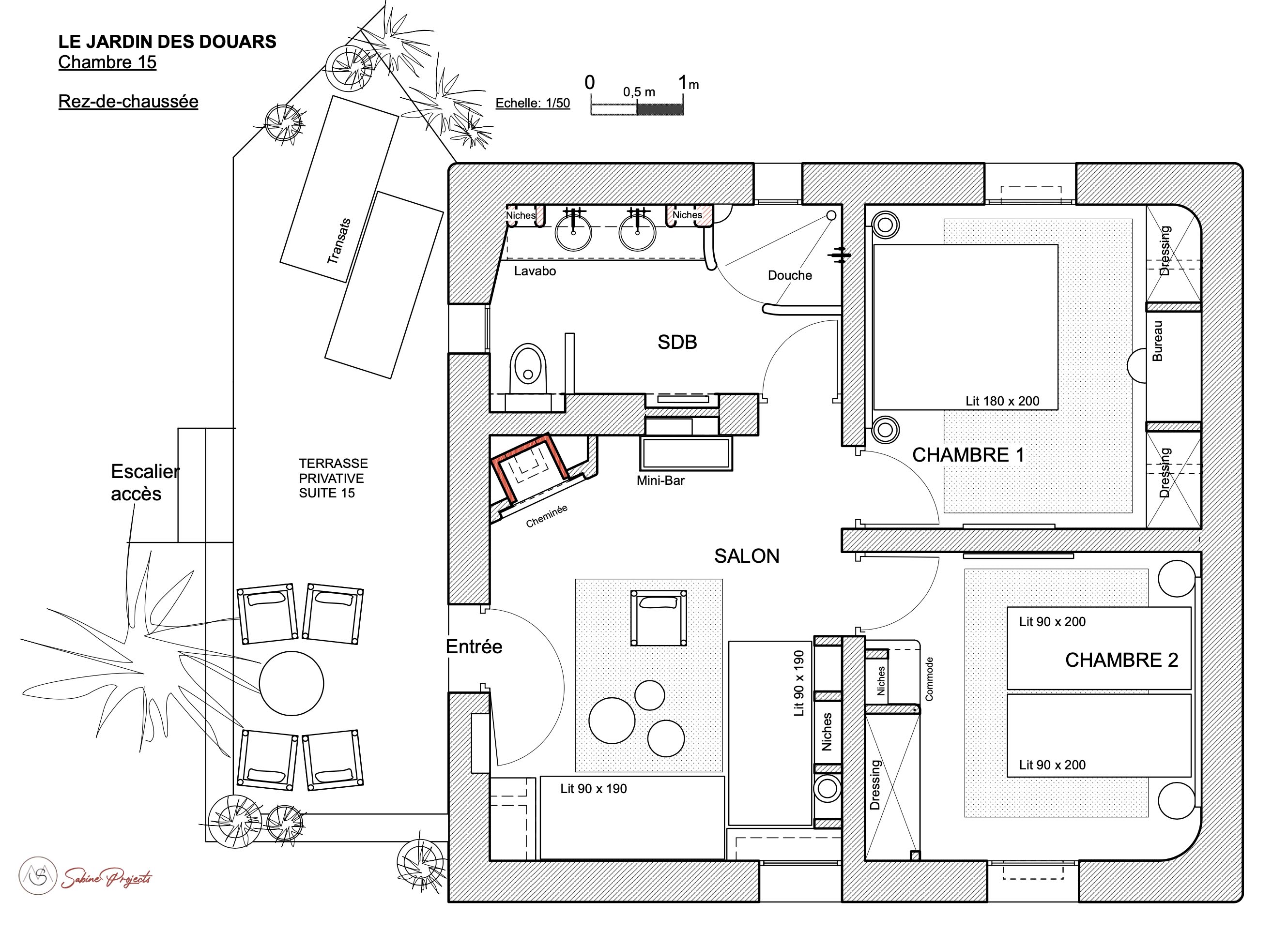
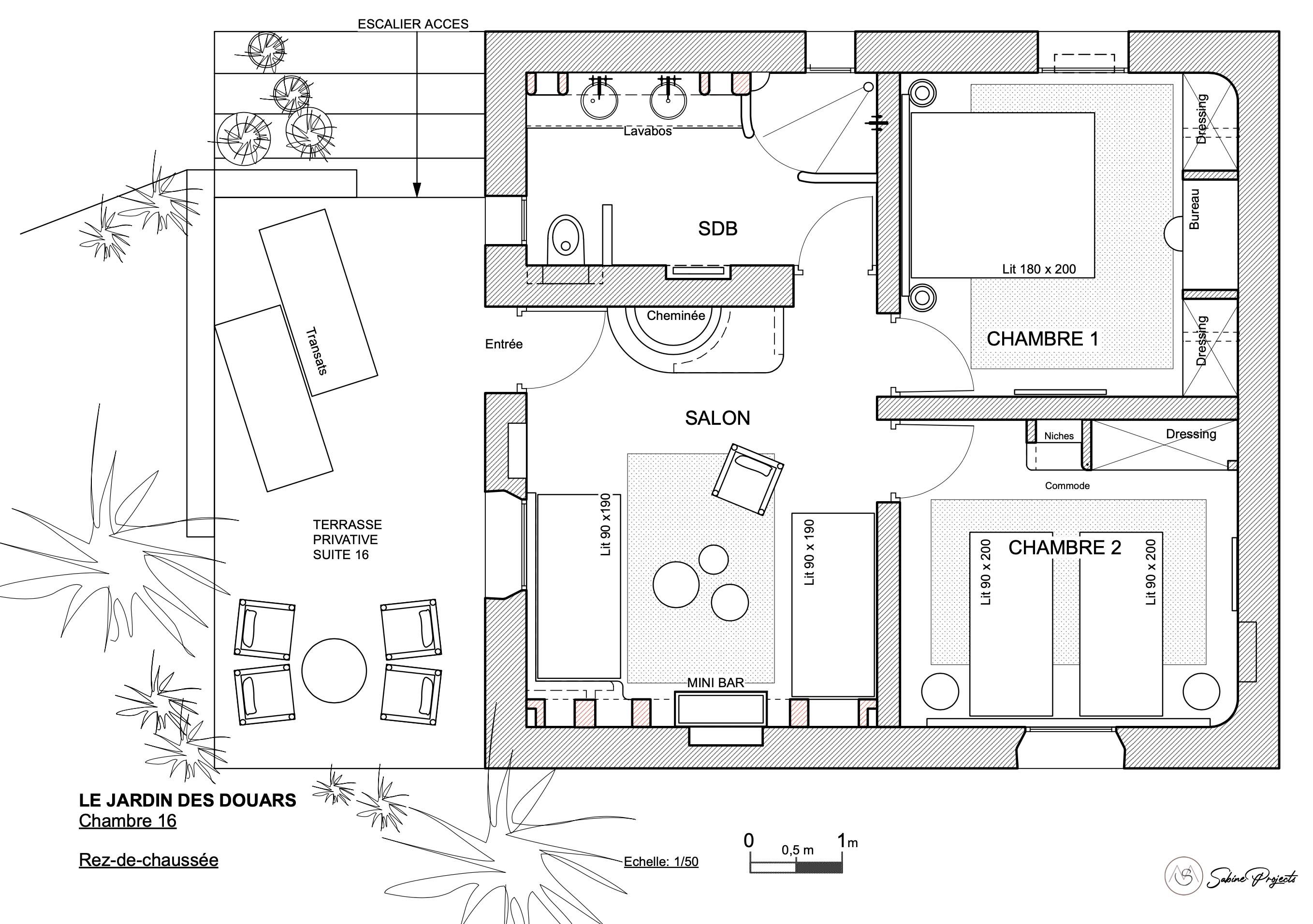
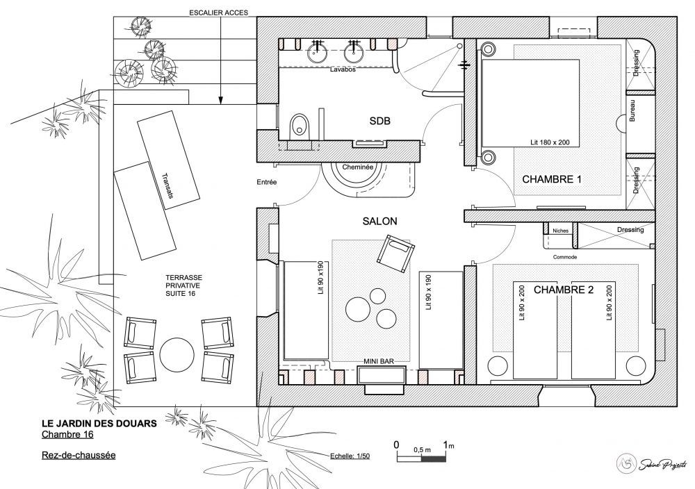
Entourée par la nature

Read more Less