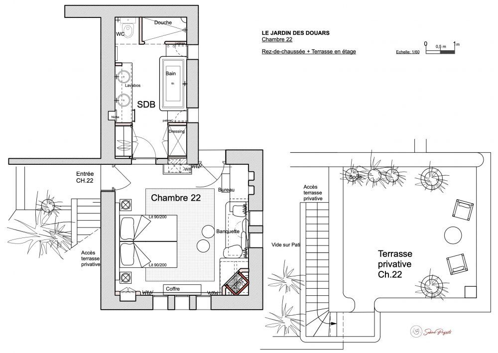
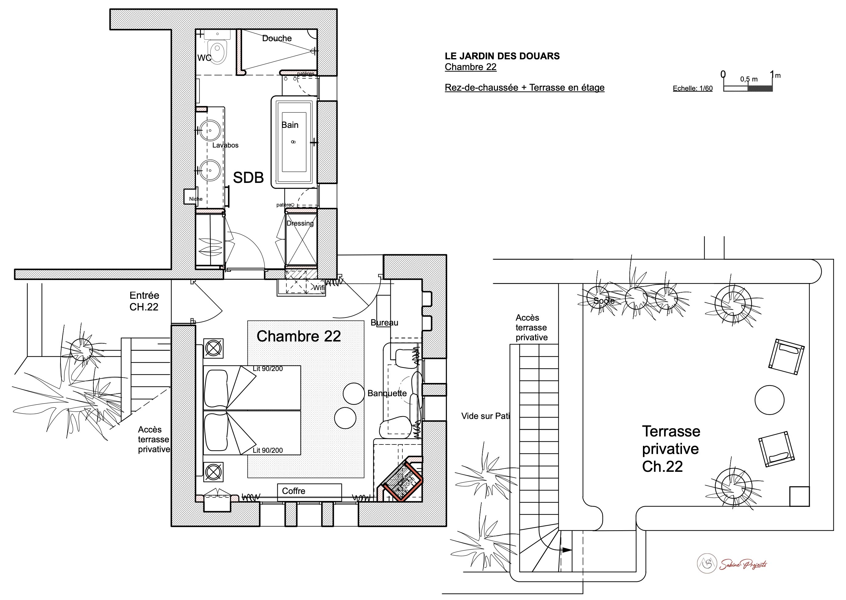
Comme un Pacha
Nos six Chambres Pacha sont nichées dans les jardins, éloignées de la bâtisse principale, proches du Spa et du bassin de nage réservé aux adultes... Pour les couples recherchant la quiétude totale et un raffinement certain. Il est enfin temps de commencer à mener votre vie de Pacha !
















